城市装修套路深似海,今天跟大家分享一下选窗攻略,希望能帮助大家,一起避坑选到适合自己的产品:
1. 选窗户之前要先咨询物业的要求。
比如,封阳台需要办理什么手续,装修押金是否要交。
注意:大家在交装修押金之前一定要询问,押金是否可退,如果不退是否抵扣物业费等等。
1. 其次需要理清自己的需求和预算哦。
市面上门窗价格从400~2000/平不等,并不是一定要挑最贵的,而是要挑选适合自己。
市面上门窗报价计算方式:单价*面积+开扇数量*单价+玻璃升级=门窗总价
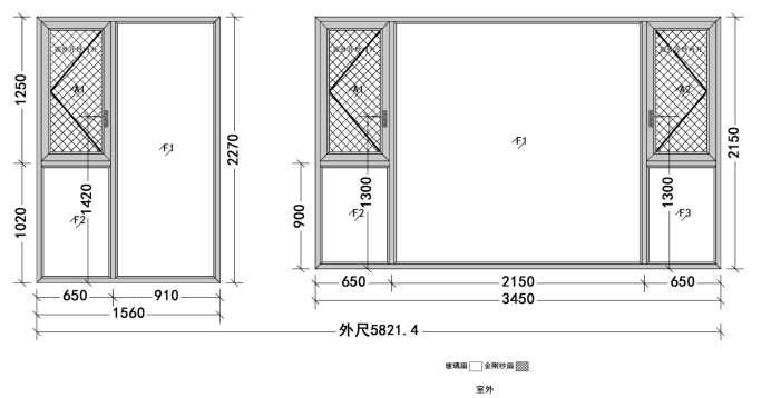
比如上图里面,这个是门窗公司给的设计图,计价方式就是 {1.56米(小窗户的宽度)×2.27+3.45米(大窗户的宽度)×2.15=10.95总面积+3套开启扇=13.95*封阳台的单价
很多业主以为就用阳台总面积乘以门窗单价就可以了,其实开扇也是需要算到面积里面的,开扇越多价格也就越贵。
在这里,可以给大家一个小方法,一般3个平方开一个扇是比较OK的,开扇太多并不能更加通风,反而会影响家里的采光,下次是有时间会跟大家详细讲解。
越大的玻璃越贵!越要注意安全! 但是也不是不能做大玻璃,现在落地大玻璃的技术很成熟,大家可以放心,只是一些无良商家为了缩减成本,不升级玻璃那就不行!
落地大玻璃比较大,5个厚的中空是绝对不安全的!!!一定要商家升级玻璃厚度,升级为6个厚,甚至8个厚的。
大家可以按照每三个平方开一个扇的方法,想一下要不要做大玻璃等等,根据自己家里阳台的面积来进行制定预算。
1. 市场常规门窗有:开窗(外开、内开、外开下悬、内开内倒)窗纱一体、移窗。
优缺点分析:开窗优点在于性能好,开启方式多样化,但内开可能影响室内空间。移窗优点在于价格便宜,不占空间方便晾晒,开关简单,但性能差,可能雨水倒灌,没有设计感。窗纱一体优点在于性能强进,设计美观防盗防蚊,但价格略贵。
1. 选断桥铝先看型材。好的门窗首先看铝材,铝材6063-T5(国家规定的型材)材料比较好,1.4厚的可以满足大部分业主需求。
2. 其次看玻璃,玻璃面积占据门窗面积80%,非常重要!
钢化玻璃原片品牌有南玻、台玻、耀华、信义,单片玻璃实卡能有几毫米;玻璃是否冲氩气;中空用一体式折弯铝条;大玻璃是否加厚;一定要标有3C标志的。
3. 五金的品牌决定使用周期时长,一定要选择大品牌五金!特别是五金哪里的四连杆。
四连杆分为3.0系列,4.0系列,以及5.0系列,其中5.0系列最贵,也是最坚固的。
这个是3.0系列
这个是4.0系列
这个是5.0系列
看安装师傅打胶水平怎么样,防水胶用的什么品牌。
看窗户的质保包含五金、防水、玻璃等等问题后期遇到如何解决
看后期还有没有其他服务,比如上门给门窗保养,定期检查等等






